Tipologia di immobile
Costruito nel 1960
Anno di costruzione
1 posto(i) auto
Garage
58 mq
Superficie del lotto
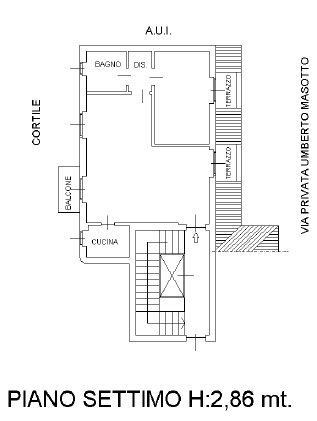
Se cerchi un rifugio dove luce e silenzio sono i veri protagonisti, questo bilocale in Via Marciano 6 è la soluzione ideale. Situato al 7° e ultimo piano, l’appartamento offre una vista aperta e un’ariosità rara, garantendo privacy e luminosità in ogni ambiente.
Recentemente e modernamente ristrutturato, lo spazio di 58 mq è così distribuito:
• Living: Ampio soggiorno con balcone.
• Cucina & Bagno: Cucinotto separato e bagno, entrambi finestrati.
• Notte: Camera matrimoniale accogliente con secondo balcone. Completano la proprietà: arredi moderni (lavatrice e lavastoviglie incluse), infissi in PVC doppio vetro, aria condizionata e vano solaio.
A pochi passi dalla nuova M4 Argonne, sei collegato in pochi minuti a San Babila e all’Aeroporto di Linate. Vivi nel cuore di Città Studi: un quartiere vivace, ricco di servizi, parchi e università, ma immerso nella quiete di una via residenziale silenziosa.
• Canone: € 1.300 + € 150 spese (riscaldamento incluso).
• Contratto: 4+4.
• Plus: Portineria (Lun-Sab)
L’ultimo piano è un’occasione rara. Non lasciartelo sfuggire!
Contattaci subito per una visita.
Tutta la documentazione grafica e testuale è puramente illustrativa e non costituisce vincolo contrattuale.
Caratteristiche
Aria condizionata
Radiatori, Metano, centralizzato
1 Posti auto
cucinotto
Frigorifero, Lavastoviglie, Lavatrice, piano cottura a induzione
Balcone
7 Piani
Città
Ascensore
Planimetria




